更新日時:2020年8月20日(木) 10:11/2422hit |
新築 Shallow(シャロウ)
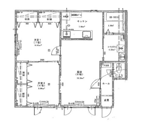
新築物件 2DK 広々 67.7m² 10月より入居可能

基本情報
| 取引態様 | 物件種目 | |
| 仲介 | アパート/賃貸 | |
| 間取り | 建築年 | オススメポイント |
| 2DK | 2020年 | 駐車2台可 |
| 家賃 | ||
|
6.8万円(68,000円) 敷金:家賃の2ヶ月分 保険料:20,000円(2年) 仲介料:74,800円 |
||
| 住所・地図 | ||
|
音更町木野大通東16丁目2
柳町小学校 栄中学校 |
||
参考画像

詳細
新築只今建設中 | 10月より入居可能 |
空室 | 1階(1部屋) 2階(2部屋) |
家賃 | 68,000円 |
敷金 | 136,000円 |
仲介手数料 | 74,800円 |
管理費 | - |
保険料 | 20,000円(2年) |
間取り | 居間11畳 台所5.5畳 洋室6畳・7畳 |
構造 | 木造2階建 |
設備 | IHコンロ システムキッチン 給湯暖房 ガスエコジョーズ 洗髪洗面化粧台 温水洗浄便座 エアコン インターフォン 物置 1800×1800 駐車場2台 宅配ボックス |
間取・内観写真などは、こちらのホームページで確認できます。(ツボハラ宅建)

この物件に関する問い合わせ
- 掲載情報と現況が異なる場合は、現況を優先とさせて頂きます。
- 広告有効期限:期限切れ
ツボハラ宅建
| 住所 | 帯広市西19条南5丁目41番地18 |
|---|---|
| TEL | 0155-33-1220 |
| 定休日 | 不定休 |
| 帯広の賃貸・不動産ならマイとかち不動産 |
| ツボハラ宅建 |
